星藝裝飾項目實景| 80㎡異型戶型改造,高顏值與實用性并存
2020-12-31 11:46:53

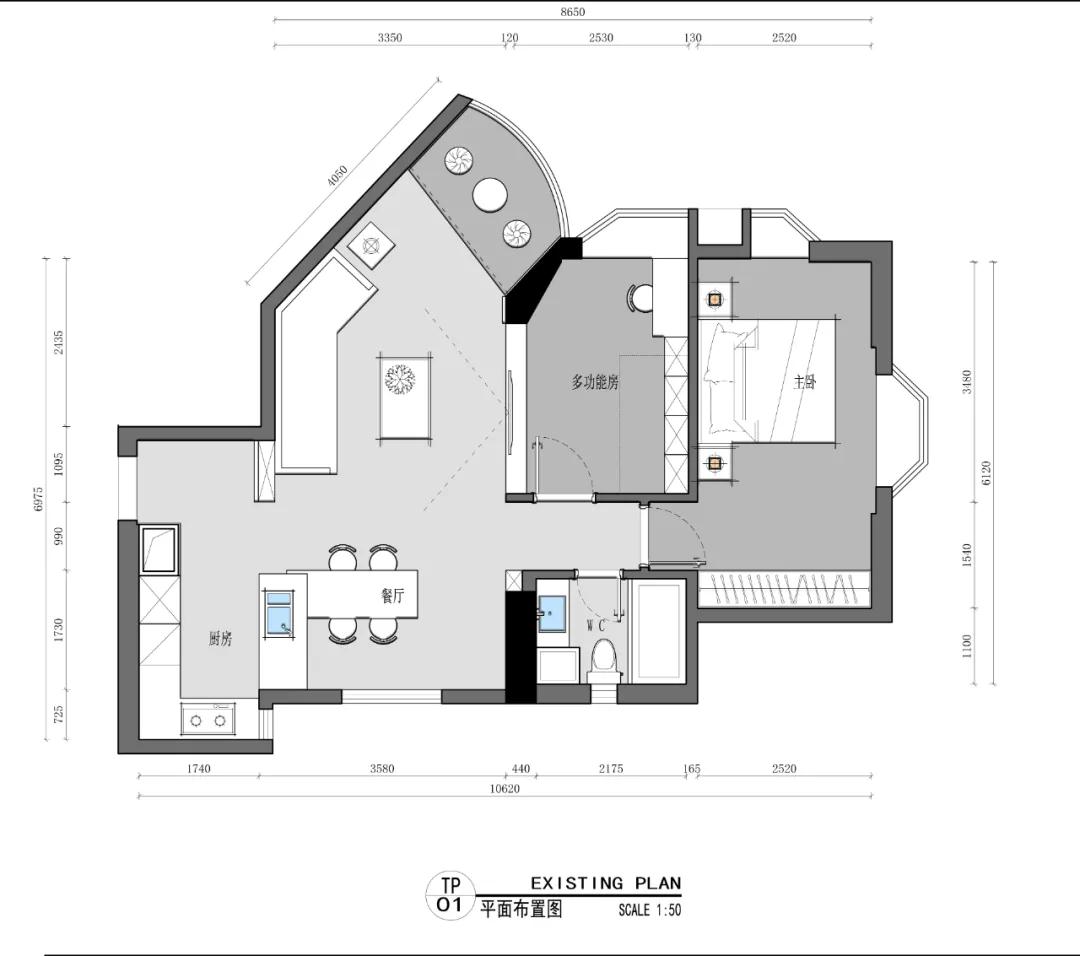
▌項目概況:
風格傾向丨現代簡約
主要材料丨仿大理石瓷磚,A8空間定制,FRANK衛浴
改造這套80㎡的老房,正是女屋主送給自己的一份生日禮物,她想打造一個獨屬于自己的居心地,也是她觸手可及的「詩和遠方」,自己可以不時地單獨來這里小住,又或者邀約朋友過來小聚。
-
以不規則柔化了鉆石角的尖銳感
-
拆除廚房墻體,擴大了面積同時改善光線和通風
-
抬高陽臺地面打造地臺,提高了空間利用率
-
懸浮式電視背景墻讓書房成為半開式的空間
半高玄關柜,營造入門儀式感
獨立的玄關空間成為了室內外空間有序轉換的入口節點,給室內保留了更多的隱私感受。吊燈猶如點睛之筆,讓原本平淡的框形成為獨具匠心的玄關端景。

開放式廚房+島臺設計,解放悶熱餐廚體驗
在承載了重要生活場景的餐廚區域,設計師直接把玻璃門和墻體打掉之后,開放式廚房搭配島臺設計,將整個餐廚空間融為一體,顯得通透、明亮。通過輕松簡約的造型與黑白灰的色調來呈現空間里的都市感。
直接從操作臺延展出餐桌,形成連貫化設計,充分節省空間。餐廚空間也有了更加直接的互動,閑來下廚聚會,女主人與親朋好友擁有了更多的交流空間,在島臺上沖沖咖啡、在餐桌邊品品小酒,悠然自得。
廚房雖小,但收納和家電都被安排得妥妥當當。集成灶堪稱小戶型+開放式廚房設計的必備神器,節省空間、近距離排煙、油煙不過臉,特別適合女主人使用。冰箱嵌入右側白色的立柜內,隱形效果保持了外立面的整潔,廚房顯得清爽和諧多了。
餐廳一角的墻體凹處正好裝飾柜,拉平與墻體的落差,讓空間整體關系上變的更加整體。開放式裝飾柜的設計,既可以收納也能展示一些有趣的陳列,讓墻面顯得藝術而個性化,提升空間品位和氛圍。
不規則沙發+半墻電視柜,地臺打造休閑空間
設計師選擇拐角沙發弱化了客廳異型結構,完美解決鉆石角所造成的尖銳感,變缺陷為亮點。墻上的抽象畫為整個空間增添了藝術的氣息,給原本稍顯寡淡色調加了精彩的一筆。


原先所謂的內陽臺,通過抬高約15cm的地面,利用地臺設計打造休閑區域,做瑜伽、品茶、打坐、看書……城市再喧囂,心中自有詩意!

電視背景墻只做了半墻高,并且地面稍為留空,懸浮的感覺令小戶型客廳看起來更為輕盈,也為后面的書房引入更多光線。
打破「墻」的定義,空間體驗感翻倍
一整面的柜子,內有乾坤!上面作為儲物的空間,下面是定制的側翻壁掛床,打開方便實用、迅速變身客房,合上以后外觀上還是整體的柜子,清清爽爽的書房。

由于房子層高還不到2.6米,客廳與書房之間的墻面留出長條形窗口作為連通,從書房看出去,交錯視線,讓整個空間有深遠不盡的感覺,虛實之間趣味倍增。
雅致小天地 簡約溫馨睡房
主臥就設計比較簡單了,床靠后以半墻條紋型的護墻板做裝飾,在簡潔的空間中點綴以適當的肌理細節,濃淡相宜。

進門右手邊是半嵌入的頂天大衣柜,最外側設計成開放式格子,擺放常用物品、包包等等,藏露相襯,實用功能大大增加!

關注我們
在線客服
公安部備案號 44010602004978號